Вариант 17

Резьбовые соединения деталей Вариант задания в AutoCAD Вариант задания в bCAD

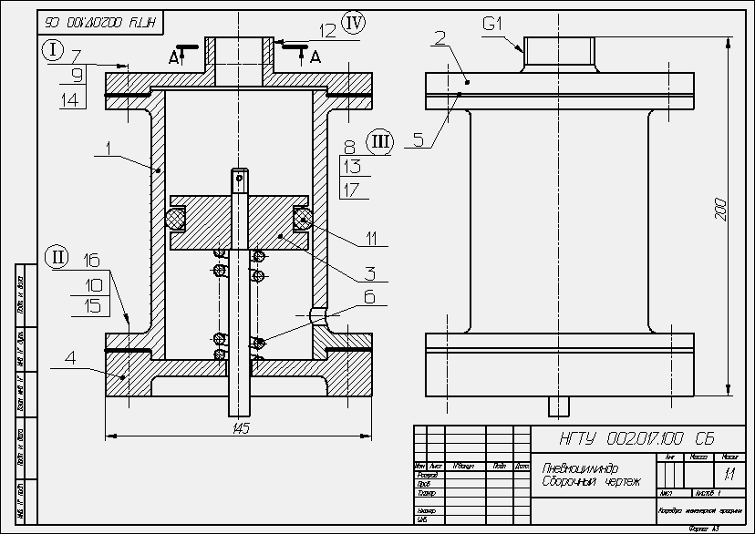
ПНЕВМОЦИЛИНДР

Основные достоинства пневмопривода – простота конструкции, удобство эксплуатации, быстрое действие и устройством основных компонентов. Общая схема пневмопривода следующая. Компрессор, приводимый в действие электродвигателем, засасывает из атмосферы воздух через фильтр и нагнетает его в пневмосистему при определенном давлении. Сжатый воздух накапливается в сборнике, который сглаживает пульсацию давления от компрессора и уменьшает влияние потребителей сжатого воздуха. По трубе воздух подается через распределитель к исполнительному устройству – пневмоцилиндру.

Пневмоцилиндры нашли наибольшее распространение в приводах литейных машин, совершающих возвратно-поступательное движение. Пневмопривод имеет несколько преобразователей энергии. Электродвигатель преобразует электрическую энергию в механическую,  которая в компрессоре переходит в энергию сжатого воздуха. В пневмоцилиндре энергия сжатого воздуха преобразуется в механическую.

Пневоцилиндры по принципу действия подразделяются на односторонние и двухсторонние. В одностороннем цилиндре сжатый воздух подается только в одну сторону от поршня 3. Обратный ход поршня осуществляется под действием пружины 6. Уплотнения служат для предотвращения утечки воздуха из полости с высоким давлением в полость с низким давление. Наиболее широко используют для уплотнения соединений кольца 11 из маслостойкой резины. Прокладки 5  обеспечивают плотное прилегание крышки 2, основания 4 к корпусу 1 посредством болтов 7,  гаек 9 , шайб 14 и шпилек 16, гаек 10, шайб 15

МЕТОДИЧЕСКИЕ УКАЗАНИЯ.

Чертеж выполнить на формате А2 в двух изображениях в масштабе 1:1. Выполнить сечение А-А на свободном поле чертежа.

На чертеже выполнить следующие соединения:

I – соединить крышку 2 с корпусом 1 болтами 7 (резьба М10), установить шайбы 14 и гайки 9;

II – выполнить соединение основания 4 с корпусом 1 шпильками 16 (резьба М12), установить шайбы 15 и гайки 10;

III – закрепить поршень 3 посредством шайбы 13, гайки 8 (резьба М8) и шплинта 17;

IV – соединить штуцер крышки 2 с тройником 12 (резьба G1).

Заполнить в спецификацию графу ”Стандартные изделия”.

Резьбовые соединения деталей Вариант задания в AutoCAD Вариант задания в bCAD