Вариант 18

Резьбовые соединения деталей Вариант задания в AutoCAD Вариант задания в bCAD

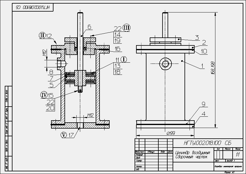
Цилиндр воздушный 

Под действием сжатого воздуха происходит движение поршня 5 внутри корпуса 1. Поршень тянет за собой шток 6. Подавая воздух поочередно в оба отверстия корпуса 1, для чего в эти резьбовые отверстия ввинчивается наконечник шлангов компрессора, можно двигать поршень 5 вверх или вниз и тем самым придавать нужное движение присоединенному к штоку 6 механизму.

Уплотнение поршня внутри корпуса достигается двумя манжетами 7 из специальной маслоустойчивой резины. Прижатие манжет к корпусу и поршню производится дисками 8 с помощью болтов 11, гаек 13 и шайб 18. Поршень закрепляется на штоке 6 гайкой 15, которая стопорится на штоке шайбой 20 и шплинтом 22. Нажимное кольцо 16, закрываемое крышкой 3, обеспечивает дополнительное уплотнение штоку 6.

Крышки 2 и 3 крепятся шпильками 21, гайками 14, шайбами19. К корпусу 1 прикрепляется винтами 12 крышка 2. Уплотнения 9 и 10 обеспечивают герметичность соединений.

Методические указания

Чертеж выполнить на формате А2 в двух изображениях в масштабе 1:1. На чертеже выполнить следующие соединения:

I – соединить диски 8 с поршнем 5 болтами 11 (резьба М6), установить шайбы 18 и гайки 13;

II – выполнить соединение корпуса 1 с крышками 2 и 4 винтами 12 (резьба М8);

III – выполнить соединение крышки 3 и крышки 2 шпильками 21 (резьба М8), установить шайбы 19 и гайки 14.

IV – закрепить поршень 5 на штоке 6 посредством гайки 15 (резьба М12), шайбы 10 и шплинта 22;

V – ввернуть в крышку 4 пробку 17 (резьба М20х1,5).

 Заполнить в спецификации графу «Стандартные изделия»  

Резьбовые соединения деталей Вариант задания в AutoCAD Вариант задания в bCAD